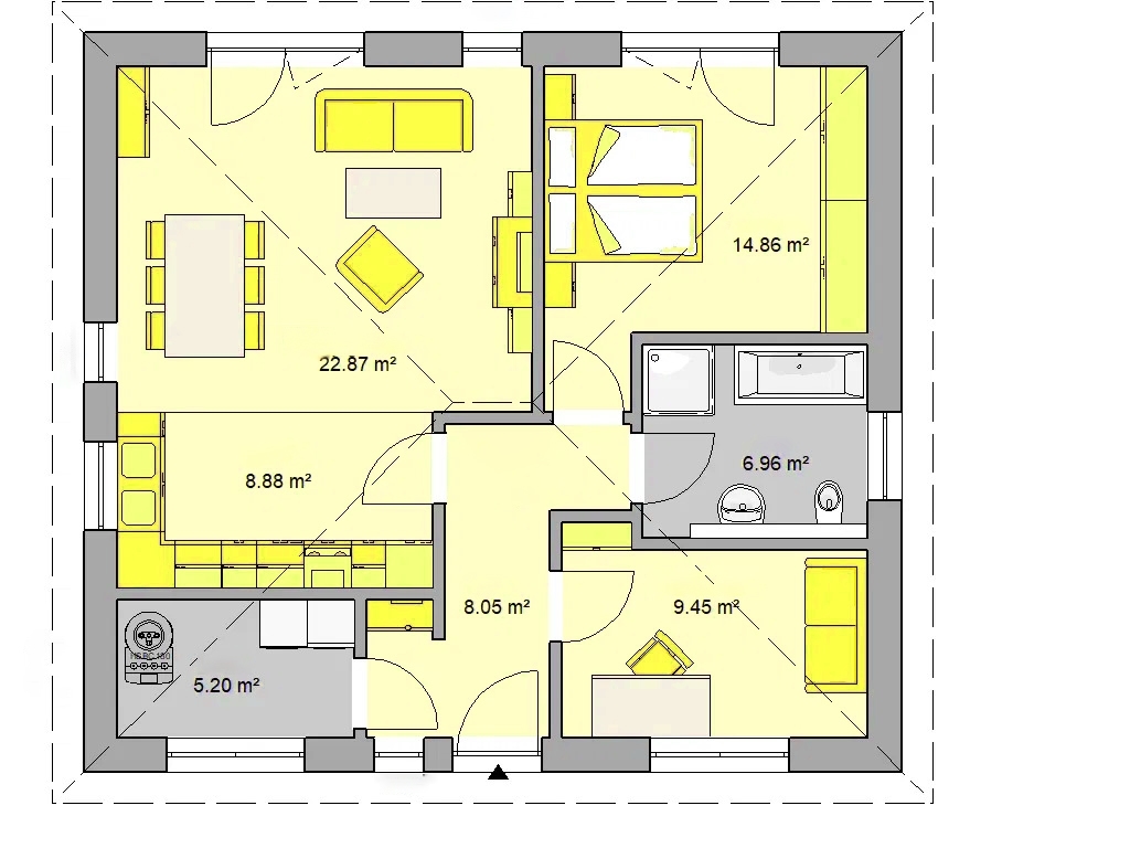
Sa 76 m² neto površine odnosno 96.77m2 bruto površine, stambenog prostora, Model KM-97 je jedan od manjih modernih projekata, ali vredi pogledati iza moderne spoljašnje fasade . Sa spoljašnje strane, mini-kuća impresionira kompaktnim četvorovodnim krovom i mnogim prozorima od poda do plafona koji puštaju mnogo svetlosti u sobe. Tako da se osećate veoma udobno u kući od prvog trenutka. Unutra, imate priliku da dizajnirate kuću onako kako ste je oduvek zamišljali. Otvoreni dnevni boravak da se osećate dobro, mala kuća, veliki uticaj – posebno u dnevnom delu, koji zajedno sa kuhinjom ima preko 30 m² i predstavlja srce kuće. Ovde ljudi kuvaju i jedu zajedno, jer je otvorena kuhinja direktno povezana sa trpezarijom. Kauč vas zatim poziva da provedete prijatno veče čitajući ili gledajući TV. U ovom delu kuće veliki fiksni prozorski elementi pozivaju vas da zavirite u baštu. Ovome se može pristupiti kroz dvokrilni prozor – tako da možete izaći napolje na nivou zemlje.



